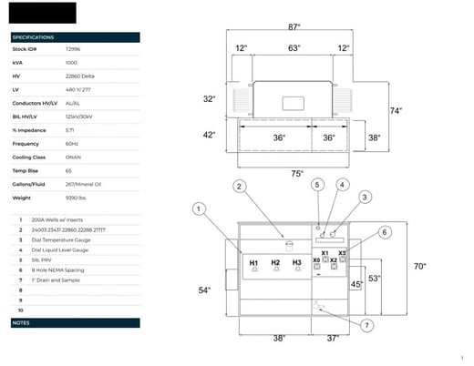
kVA: 1000.000
Primary Voltage: 22860
Secondary Voltage: 480 - 277
Stock # T2996
For Sale by Core Transformers
Surplus Record Dealer Since 2022
Mitch Garland
888-67...> Show Seller's Phone Number 888-678-2673 Let the seller know you found their listing on Surplus Record!
Get Your Price from Core Transformers!
Buyers Who Viewed This Listing Also Viewed …
1000 KVA 22860Y/13200 Primary, 480Y/277 Secondary, 3 phase, Padmount Transformer
Seller: Maddox Industrial Transformer
Location: Greenville, SC
Mfr: Howard Industries
1000 KVA 22860GrdY/13200 Primary, 480Y/277 Secondary, 3 phase Pad Mount Transformer
Seller: Sunbelt Solomon Services, LLC
Location: Temple, TX
1000 kVA 24940/14400 Delta Primary, 480Y/277 Secondary,PAD,Recon(shipment available in 10 days)
Seller: Core Transformers
Location: SENECA, SC
1000 KVA 23900Y/13800 Primary, 480Y/277 Secondary, RTE, Oil, #LT0117
Seller: RESA Power Solutions
Location: Cerritos, CA
Mfr: Rte
Rural Transformer & Equipment Co. Liquid Type Transformer, Pad Mount - Oil design, 1000 KVA, 23900Y/13800v Primary, 480Y/277v Secondary.
1000 KVA 24940Y/14400 Primary, 480Y/277 Secondary, Taps, pad mount (3 available)
Seller: T & R Electric Supply Co Inc
Location: Colman, SD

